Våre prosjekter
Selge eiendom?
Selskapet
Kontakt
Østensjøporten
Prosjektet
Leilighetene
Utforsk solforholdene
Nyheter
Innlogging kjøper
A201
Se mer informasjon om denne leiligheten lengre ned
Meld interesse
Status
Solgt
Leilighet
A201
Pris
BRA kvm.
89.5
Soverom
3
P-rom kvm.
89.5
Omkostninger
36 442
Estimerte Felleskost. pr. mnd
5 289
Type
Leilighet
Uteplass m²
20,5
Etasje
2.
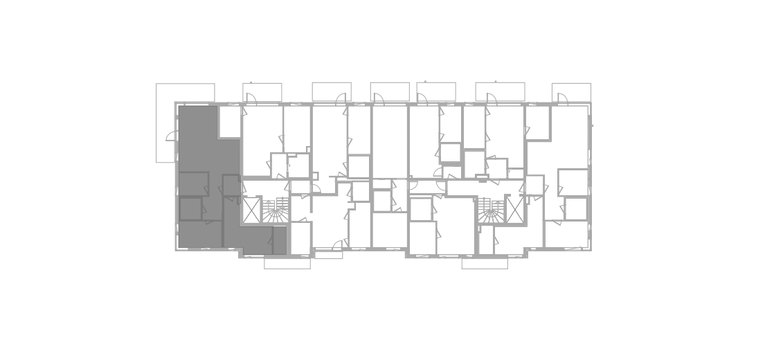
Plassering av leilighet i Hus A (Syd)
Last ned detaljert plantegning
Salgstegning A-201
Kontraktstegning A-201
Registrer deg her, og vi holder deg orientert om utviklingen i prosjektet!
Fyll inn navn
Fyll inn telefonnummer
Fyll inn e-post
Romløsning
2-roms
3-roms
4-roms
Med mulighet for utleie
Skriv en beskjed (ikke påkrevd)
Jeg ønsker å bli kontaktet i samtykke med denne
personvernerklæringen
Send
Powered by Plyo
Tilbake til Hus A