Våre prosjekter
Selge eiendom?
Selskapet
Kontakt
Poppelhagen - Sæter
Leiligheter og priser
Nyheter
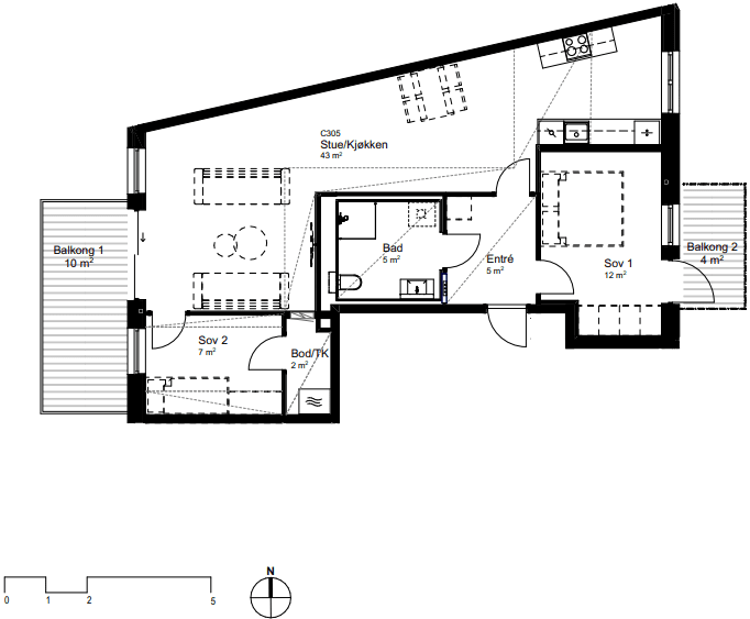
C305
Se mer informasjon om denne leiligheten lengre ned
Meld interesse
Status
Solgt
Leilighet
C305
Pris
BRA kvm.
83
Soverom
3
P-rom kvm.
80
Omkostninger
79 167
Felleskostnader pr. mnd.
3 122
Type
Leilighet
Balkong m²
10
Etasje
2.
Se utsikt og solforhold fra balkong
Solforhold bygg C
Last ned detaljert plantegning
C-305
Registrer deg her, og vi holder deg orientert
om utviklingen i prosjektet!
Fyll inn navn
Fyll inn telefonnummer
Fyll inn e-post
Postnummer
Kommentarfelt
Jeg ønsker å bli kontaktet av megler i samtykke med denne
personvernerklæringen
Send
Powered by Plyo
Tilbake til Bygg C