Våre prosjekter
Selge eiendom?
Selskapet
Kontakt
Poppelhagen - Sæter
Leiligheter og priser
Nyheter
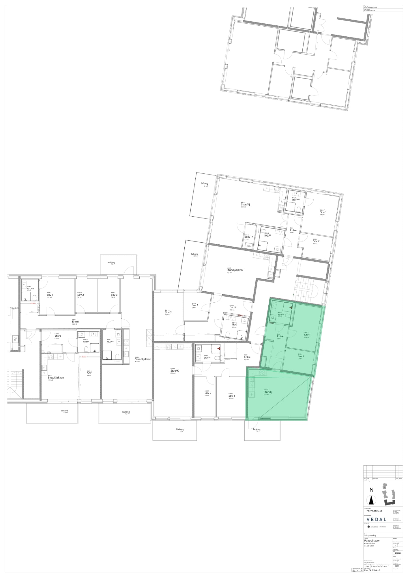
B410
Se mer informasjon om denne leiligheten lengre ned
Meld interesse
Status
Solgt
Leilighet
B410
Pris
BRA kvm.
63
Soverom
2
P-rom kvm.
60
Omkostninger
Estimerte Felleskost. pr. mnd
Type
Selveierleilighet
Balkong m²
7
Etasje
4.
Se utsikt og solforhold fra balkong
Solforhold bygg B
Last ned detaljert plantegning
B-410
Registrer deg her, og vi holder deg orientert
om utviklingen i prosjektet!
Fyll inn navn
Fyll inn telefonnummer
Fyll inn e-post
Postnummer
Kommentarfelt
Jeg ønsker å bli kontaktet av megler i samtykke med denne
personvernerklæringen
Send
Powered by Plyo
Tilbake til Bygg B