Våre prosjekter
Selge eiendom?
Selskapet
Kontakt
Poppelhagen - Sæter
Leiligheter og priser
Nyheter
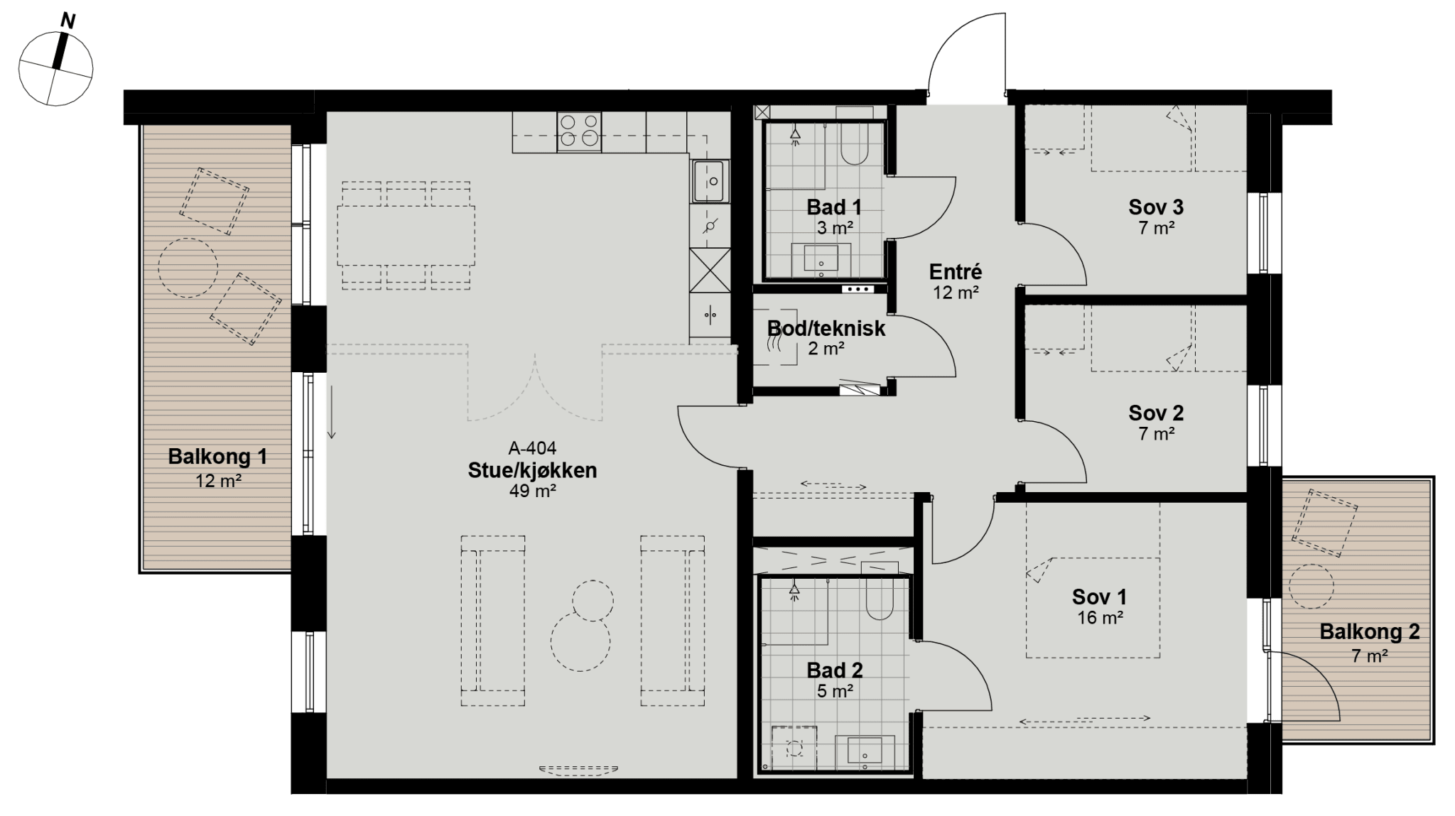
A404
Se mer informasjon om denne leiligheten lengre ned
Meld interesse
Status
Solgt
Leilighet
A404
Pris
BRA kvm.
113
Soverom
3
P-rom kvm.
109
Omkostninger
106 167
Estimerte Felleskost. pr. mnd
3 696
Type
Leilighet
Balkong m²
19
Etasje
4.
Solforhold bygg A
Last ned detaljert plantegning
A 404
Registrer deg her, og vi holder deg orientert
om utviklingen i prosjektet!
Fyll inn navn
Fyll inn telefonnummer
Fyll inn e-post
Postnummer
Kommentarfelt
Jeg ønsker å bli kontaktet av megler i samtykke med denne
personvernerklæringen
Send
Powered by Plyo
Tilbake til Bygg A