Våre prosjekter
Selge eiendom?
Selskapet
Kontakt
Poppelhagen - Sæter
Leiligheter og priser
Nyheter
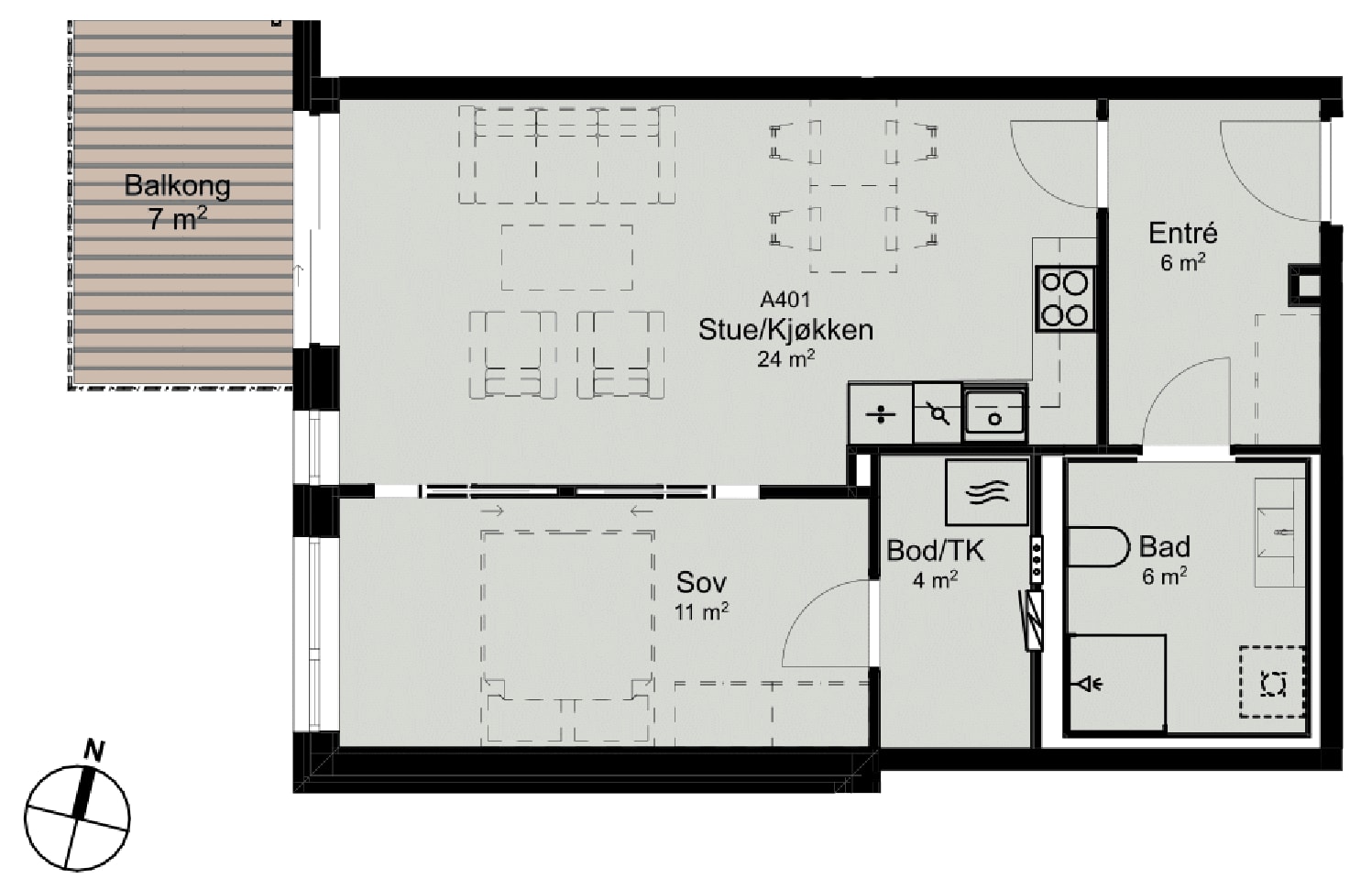
A401
Se mer informasjon om denne leiligheten lengre ned
Meld interesse
Status
Solgt
Leilighet
A401
Pris
BRA kvm.
54
Soverom
1
P-rom kvm.
50
Omkostninger
53 067
Estimerte Felleskost. pr. mnd
2 682
Type
Leilighet
Balkong m²
7
Etasje
4.
Se utsikt og solforhold fra balkong
Solforhold bygg A
Last ned detaljert plantegning
A-401-S A401
Registrer deg her, og vi holder deg orientert
om utviklingen i prosjektet!
Fyll inn navn
Fyll inn telefonnummer
Fyll inn e-post
Postnummer
Kommentarfelt
Jeg ønsker å bli kontaktet av megler i samtykke med denne
personvernerklæringen
Send
Powered by Plyo
Tilbake til Bygg A