Våre prosjekter
Selge eiendom?
Selskapet
Kontakt
Libakkløkka
Leiligheter & priser
Om prosjektet
Galleri & solforhold
Nyheter
Dokumenter
Meld interesse
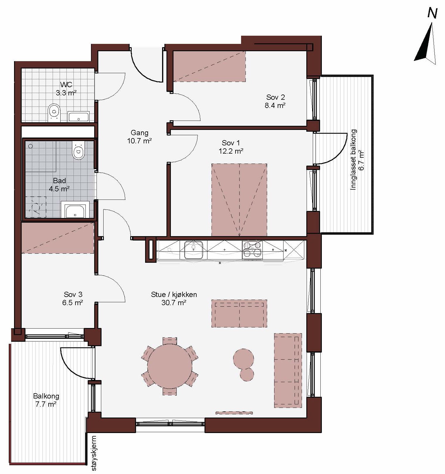
B404
Meld interesse
Kjøp
Status
Ledig
Balkong / Terrasse m²
7,7
Innglasset Balkong m²
6,7
Pris
9 890 000
BRA m²
92,6
BRA-i m²
80,9
Antall rom
4
Felleskostnader pr. mnd
3 812
BRA-e m²
5
Soverom
3
Etasje
4
REGISTRER DEG SOM INTERESSENT
Ved å melde deg på listen vil du få informasjon om salgsstart og prosjektet.
Fyll inn navn
Fyll inn telefonnummer
Fyll inn e-post
Jeg ønsker å bli kontaktet i samtykke med denne
personvernerklæringen
Meld interesse
Powered by Plyo
Tilbake til Leiligheter & priser