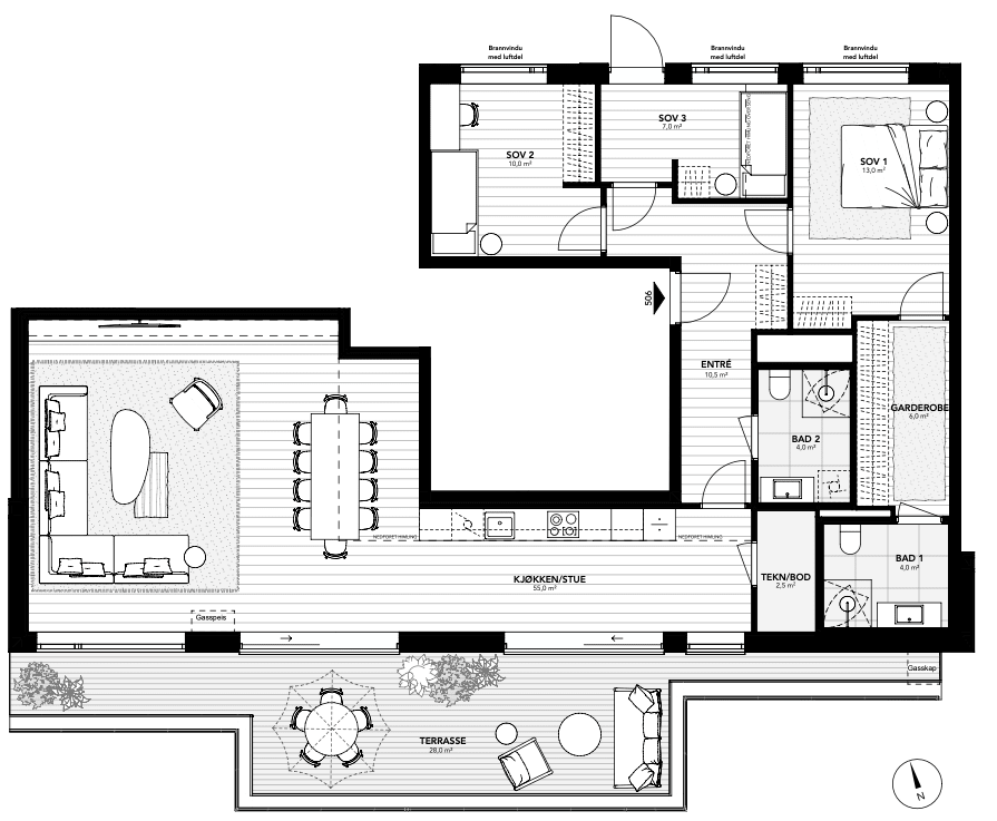
506
Eksklusiv toppleilighet med stor og solrik takterrasse på hele 28 kvm, tre soverom, to bad og høy standard. Det leveres 1-stavs eikeparkett, HTH kjøkkeninnredning, Siemens integrerte hvitevarer, HTH baderomsinnredning, baderomsfliser i terrassostil, Elko plus, vannbåren varme, balansert ventilasjon og mye mer!
Status
Ledig
Leilighet
506
Pris
17 500 000
BRA-i m²
119
Rom
4-roms
Omkostninger
63 050
Estimerte Felleskost. pr. mnd
6 544
Balkong / terrasse m²
28
Etasje
5.
BRA-e m²
5
