505
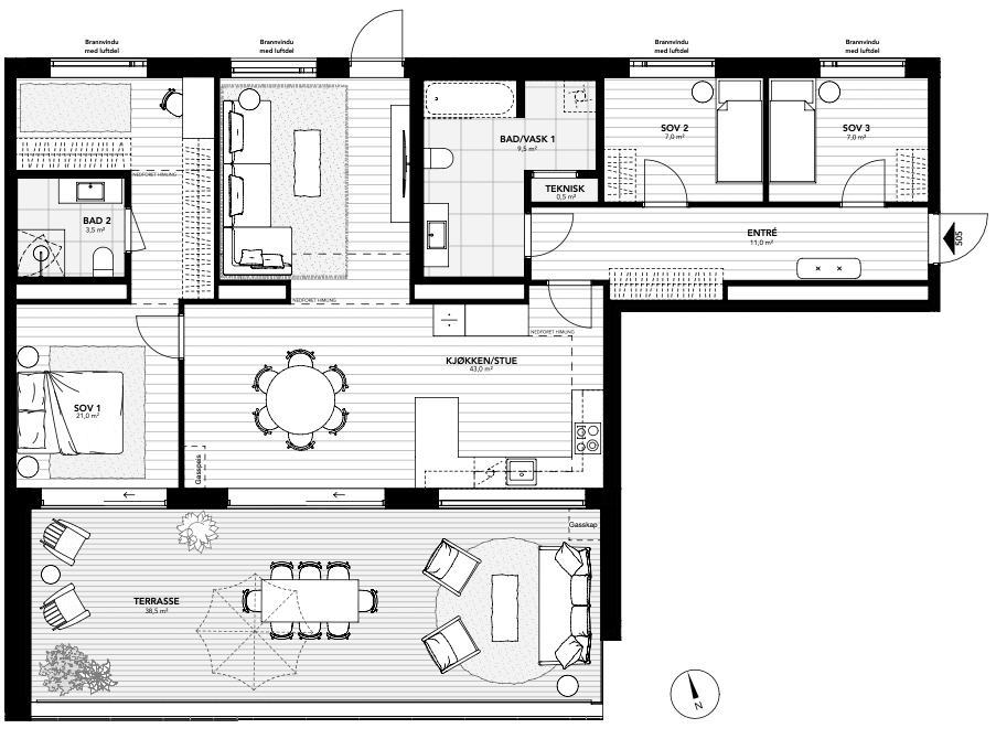
Eksklusiv toppleilighet med stor og solrik takterrasse på hele 38,5 kvm, tre soverom, to bad, hvorav hovedbad med vaskerom og høy standard. Det leveres 1-stavs eikeparkett, HTH kjøkkeninnredning, Siemens integrerte hvitevarer, HTH baderomsinnredning, baderomsfliser i terrassostil, Elko plus, vannbåren varme, balansert ventilasjon og mye mer! Master soverom med en-suite bad og walk-in closet.
Det er i forbindelse med tilvalgsperioden valgt kjøkkeninnredning av type/farge HTH Focus Beige, sorte detaljer på innerdører, elektro, kjøkkenbatteri, vask på kjøkken, dusjgarnityr, servantarmatur på bad, slukrist osv. Det er valgt servantskap på badene av type/farge HTH Base Grønn.
Det er foretatt tilvalg på denne leiligheten utover standard leveranse. Dette innebærer oppgradering til gulvfliser i entré, oppgradering av benkeplate til kvartsittkompositt, oppgradering av hylleplater på kjøkken og oppgradering av fliser på bad.
Det er i forbindelse med tilvalgsperioden valgt kjøkkeninnredning av type/farge HTH Focus Beige, sorte detaljer på innerdører, elektro, kjøkkenbatteri, vask på kjøkken, dusjgarnityr, servantarmatur på bad, slukrist osv. Det er valgt servantskap på badene av type/farge HTH Base Grønn.
Det er foretatt tilvalg på denne leiligheten utover standard leveranse. Dette innebærer oppgradering til gulvfliser i entré, oppgradering av benkeplate til kvartsittkompositt, oppgradering av hylleplater på kjøkken og oppgradering av fliser på bad.
Status
Solgt
Leilighet
505
Pris
BRA-i m²
112
Rom
4-roms
Omkostninger
Estimerte Felleskost. pr. mnd
Balkong / terrasse m²
38,5
Etasje
5.
BRA-e m²
5
