Våre prosjekter
Selge eiendom?
Selskapet
Kontakt
Prinsessealléen - Skøyen
Boligvelger
Siste nytt
Dokumenter
Meld deg på visning
110
Meld interesse
Status
Solgt
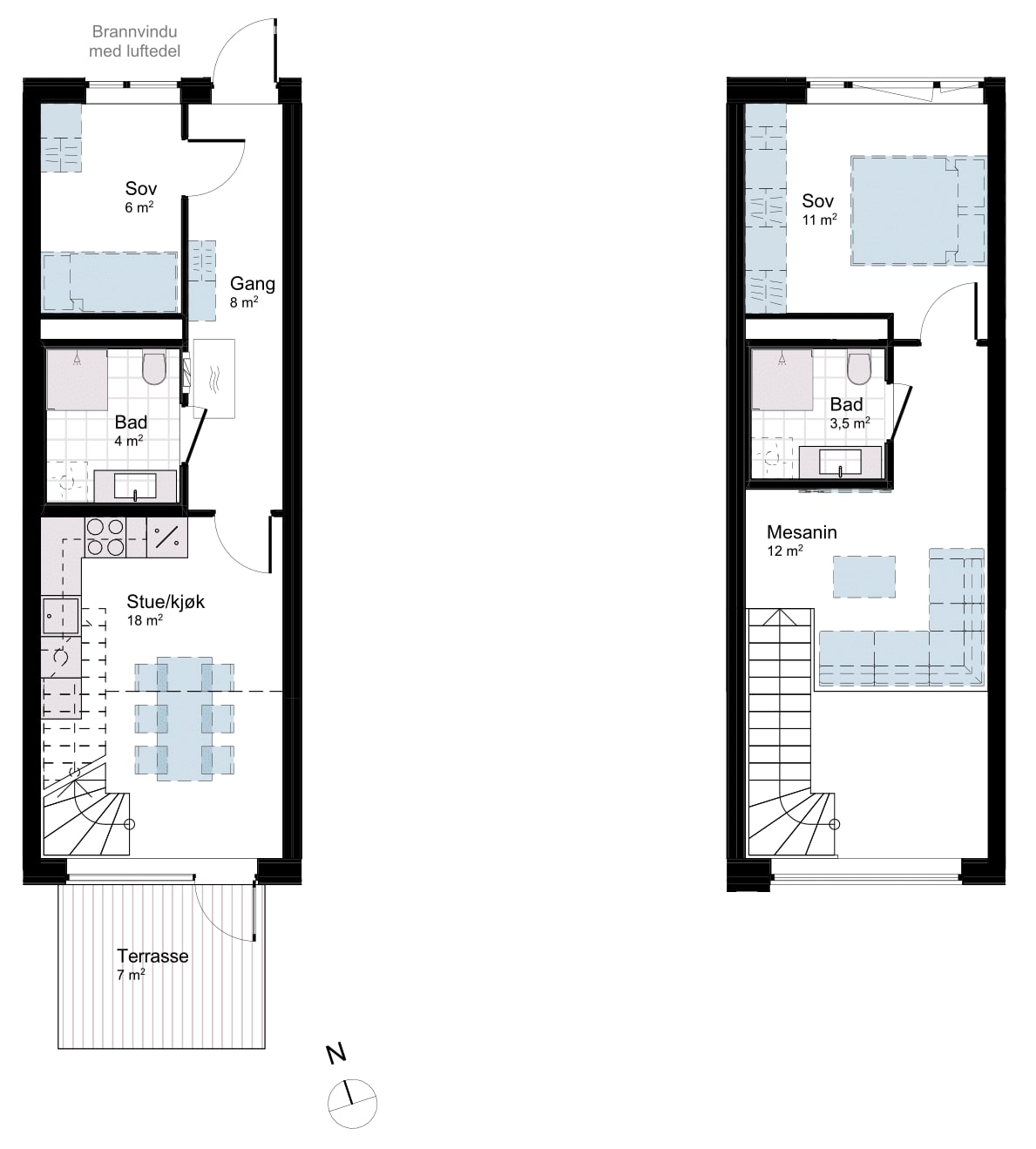
Leilighet
110
Pris
BRA kvm.
68
Rom
3-roms
P-rom kvm.
68
Omkostninger
Estimerte Felleskost. pr. mnd
Balkong / terrasse m²
7
Etasje
1.
Last ned detaljert plantegning
Salgstegning-110
Kontraktstegning
Meld interesse for prosjektet
Fyll inn navn
Fyll inn telefonnummer
Fyll inn e-post
Postnummer
Romløsning
2-roms
3-roms
4-roms
Med mulighet for utleie
Kommentarfelt
Jeg ønsker å bli kontaktet i samtykke med denne
personvernerklæringen
Send
Powered by Plyo
Tilbake til Boligvelger