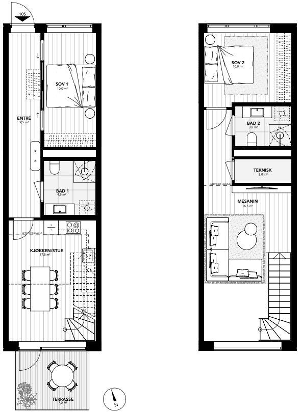
105
Unik fabrikkleilighet over 2 plan med sydvendt uteplass, to bad, mesanin, opp til 5,5 m takhøyde og høy standard med blant annet 1-stavs eikeparkett, betonggulv i 1. etasje, HTH kjøkkeninnredning, integrerte hvitevarer fra Siemens, HTH baderomsinnredning, baderomsfliser i terrassostil, Elko plus, vannbåren varme, balansert ventilasjon og mye mer!
Status
Solgt
Leilighet
105
Pris
BRA-i m²
80
Rom
3-roms
Omkostninger
Estimerte Felleskost. pr. mnd
Balkong / terrasse m²
7
Etasje
1.
BRA-e m²
5
