Våre prosjekter
Selge eiendom?
Selskapet
Kontakt
Libakkløkka
Leiligheter & priser
Om prosjektet
Galleri & solforhold
Nyheter
Dokumenter
Meld interesse
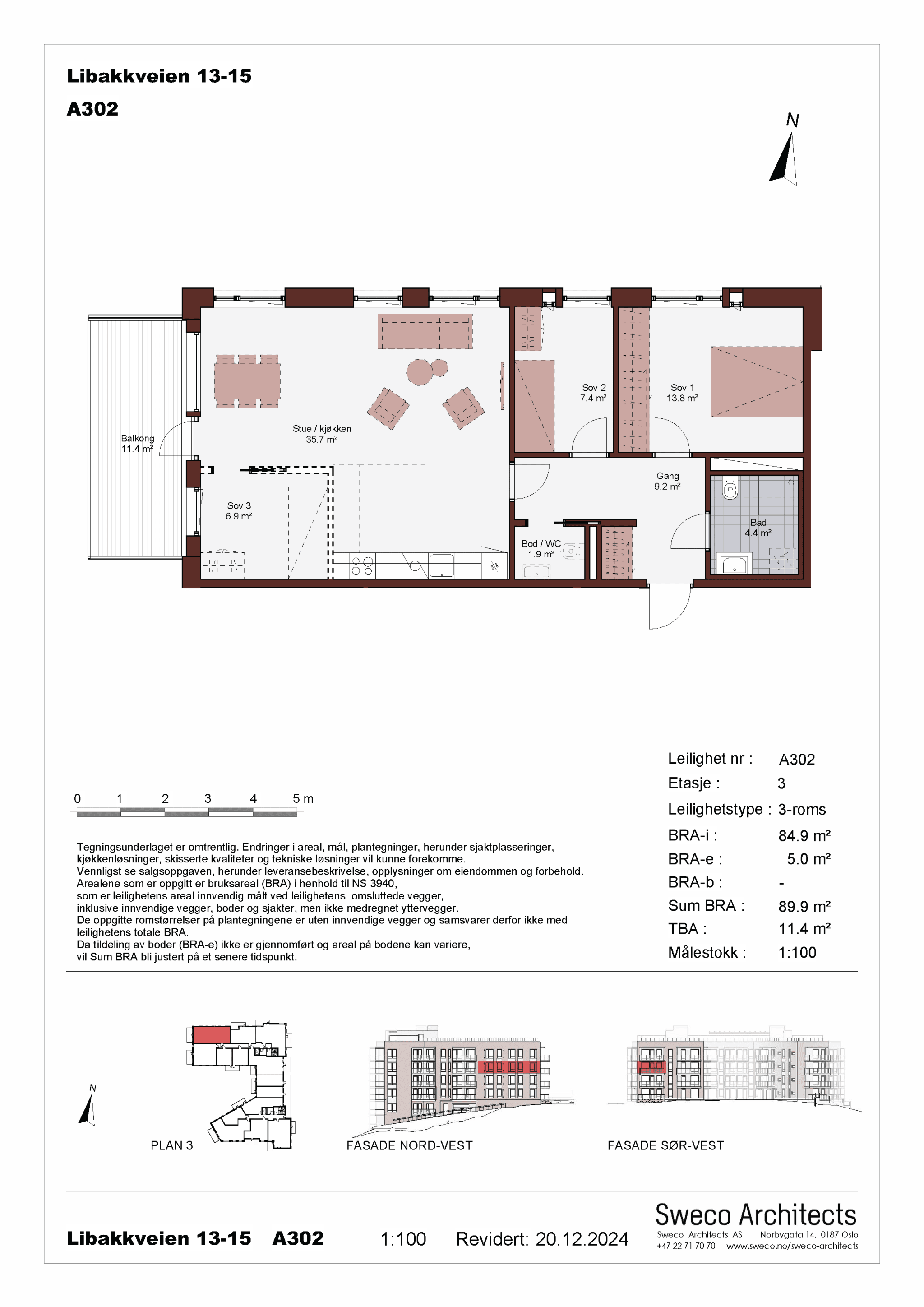
A302
Solgt
Status
Solgt
Balkong/terrasse m²
11,4
Pris
BRA m²
89,9
BRA-i m²
84,9
Antall rom
3
Felleskostnader pr. mnd
BRA-e m²
5
Soverom
2
Etasje
3
REGISTRER DEG SOM INTERESSENT
Ved å melde deg på listen vil du få informasjon om salgsstart og prosjektet.
Fyll inn navn
Fyll inn telefonnummer
Fyll inn e-post
Jeg ønsker å bli kontaktet i samtykke med denne
personvernerklæringen
Meld interesse
Powered by Plyo
Tilbake til Leiligheter & priser