Våre prosjekter
Selge eiendom?
Selskapet
Kontakt
Bekkegrenda - Eiksmarka
Finn din bolig
Boligtyper
Kvaliteter
Galleri
Solforhold
Siste nytt
Dokumenter
Meld interesse
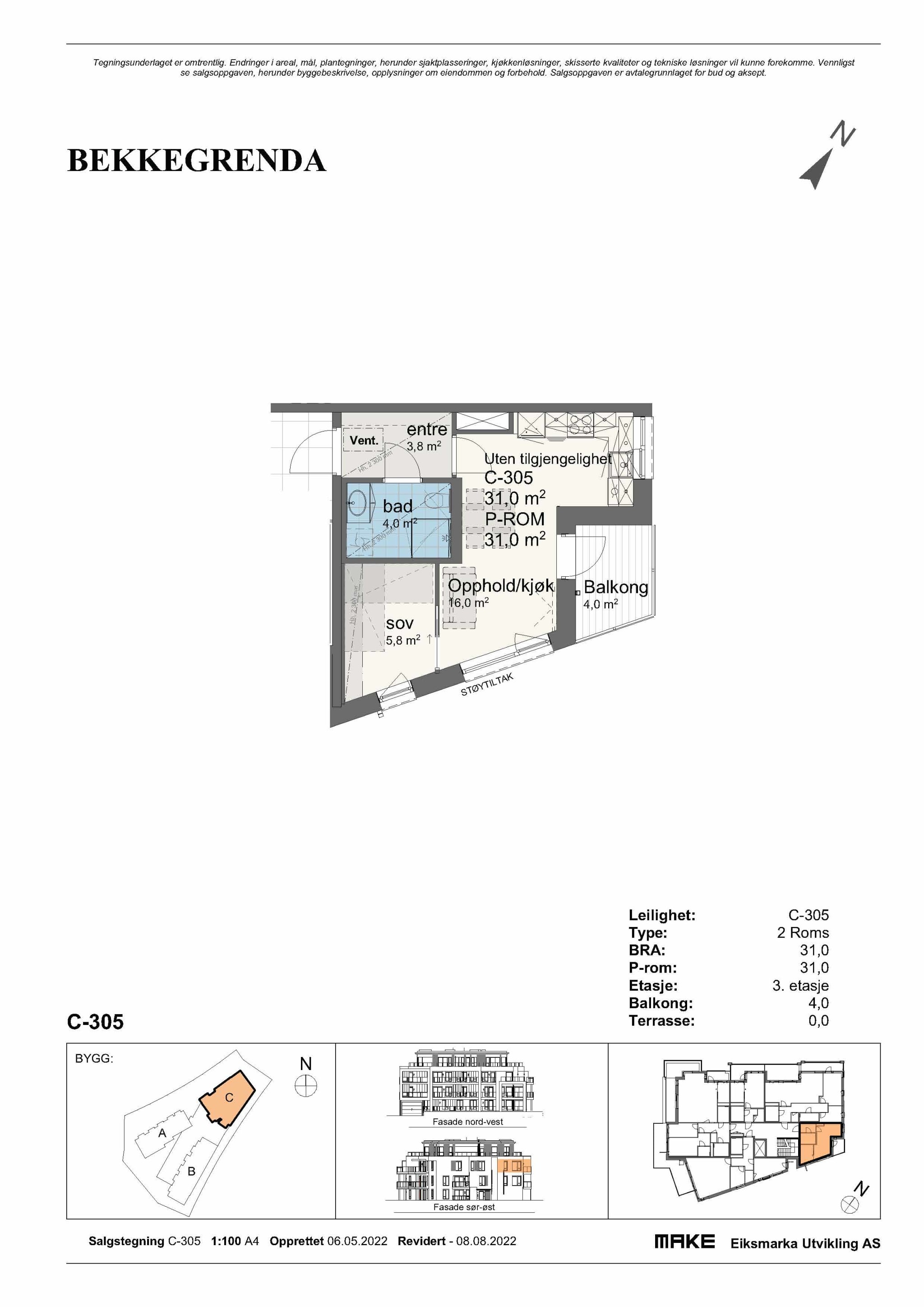
C-305
Meld interesse
Status
Solgt
Leilighet
C-305
Pris
Soverom
1
BRA kvm.
37
P-rom
31
Type
Leilighet
Etasje
3.
Gasspeis
Uteareal m²
4
Omkostninger
23 350
Registrer deg som interessent
Ved å melde deg på listen vil du få tilsendt informasjon om prosjektet.
Fyll inn navn
Fyll inn telefonnummer
Fyll inn e-post
Postnummer
Romløsning
2-roms
3-roms
4-roms
Med mulighet for utleie
Kommentarfelt
Jeg ønsker å bli kontaktet i samtykke med denne
personvernerklæringen
Send
Tilbake til Bygg C - Leiligheter